ART5-350

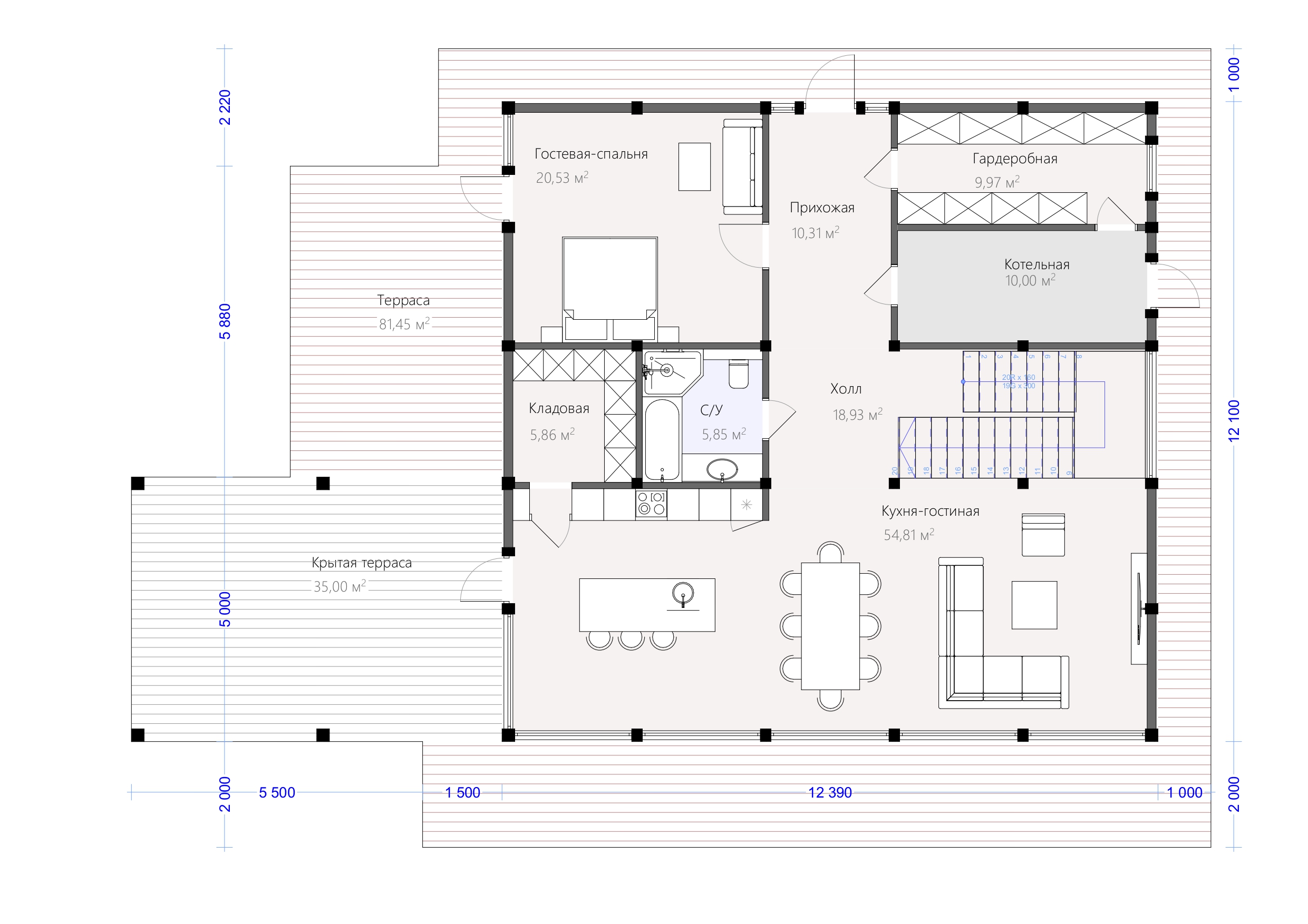
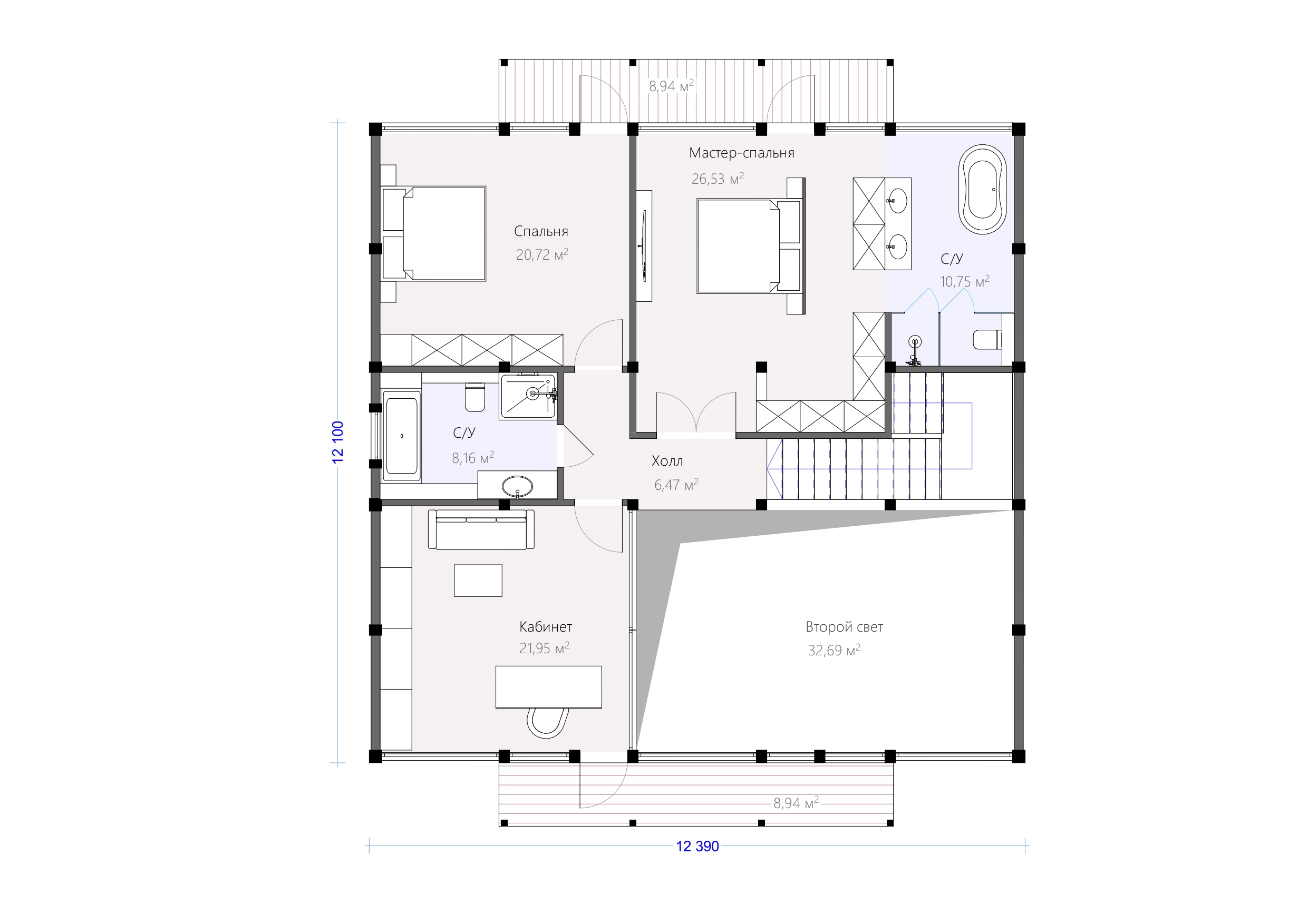
Этот двухэтажный дом с тремя спальнями и просторной кухней-гостинной предлагает роскошное жилье с комфортным размещением для всей семьи. Открытая планировка и современные удобства делают его идеальным местом для семейных посиделок и повседневного удобства.

  • 350 м2

    Общая площадь

  • 297 м2

    Теплый контур

  • 2

    этажа

  • 4

    спальни

  • 3

    санузла

Планировка.

Вариант планировки

Дом в базовой комплектации собирается в свободной планировке. Вы можете реализовать индивидуальное планировочное решение.

Архитектура.

Архитектура проекта

Инновационные решения на базе вековых традиций

Покажем наши самые интересные решения!

Мы с радостью проконсультируем вас по проекту и покажем наши самые интересные решения!

Отделка.

Примеры внутренней отделки

Инновационные решения на базе вековых традиций

Стоимость дома.

Что входит в тёплый контур

Балочная система

  • Укладка рулонной гидроизоляции «Стеклоизол» на Ростверк;
  • Клеено-конструкционная балка, стойки сечением 200х200мм, балки сечением 350/100 , экологическая клеевая система Akzo Nobel (Швеция);
  • Антисептирование на производстве составом REMMERS;
  • Обработка торцов от растрескивания составом TEKNOS;
  • Сверление отверстий под шпильки;
  • Профильная система по Вашему выбору;
  • Под обвязочный брус стартовая доска 50х200мм из лиственницы;
  • Утеплительная прокладка для герметизации стыков;
  • Герметизация соединительных стыков гибридным, полиуретановым клей-герметиком;
  • Оцинкованный металлический крепеж;
  • Балки перекрытия из сухой строганной доски 50х195 мм экспортного; качества или клееные конструкционные балки, обработанные огнебиозащитным составом.

Остекление

  • Безрамное остекление минимальной толщины 50 мм;
  • Двухкамерные, закаленные стеклопакеты с энергоэффективным напылением;
  • Камеры стеклопакетов заполнены аргоном;
  • Композитная дистанционная рамка;
  • Формула стеклопакета 8мм/6мм/6мм или 8мм/6мм/8мм;
  • Монтаж безрамных стеклопакетов осуществляется в заранее запиленные на заводе пазы;
  • Герметизация швов гибридным герметикой BOSTIK;
  • Отливы из лиственницы в уровень с брусом;
  • Оконные и балконные блоки ПВХ REHAU (Германия) толщиной 70мм, энергосберегающий 2-х камерный стеклопакет;
  • Пятикамерный профиль Rehau толщиной 70 мм;
  • Композитная дистанционная рамка;
  • Высококачественный уплотнитель;
  • Фурнитура Roto (Германия);
  • Теплый подставочный профиль из высокоплотного полистирола.

Кровля

  • Стропильная система из сухой строганной доски 50х195 мм экспортного качества, обработанная огнебиозащитным составом;
  • Обрешетка из бруска 50х50 мм экспортного качества;
  • Оцинкованный металлический крепеж;
  • Утепление 200мм минеральной ваты или самый энергоэффективный PIR-утеплитель 100 мм с использованием экологически чистых материалов с перекрестным утеплением;
  • Пароизоляция мембранного типа и гидроизоляция;
  • Металлическая черепица со всеми комплектующими;
  • Водосточная система.

Утепление

  • PIR-Утеплитель 100 мм в стенах
  • Утепление полов так же 100мм PIR-утепления
  • PIR-Утеплитель не горючий и экологически чистый материал
  • 100мм PIR-утепления=200 мм базальтовой ваты
  • Коэффициент сопротивления теплопередачи R=4,5

Организация СМР

  • Транспортные и накладные расходы (Московская, Ленинградская область)
  • Организация проживания рабочих
  • Монтаж домокомплекта
  • Все расходные и сопутствующие материалы
  • Инженерный и технический надзор специалистами компании

Проектная документация

  • Архитектурный раздел
  • Конструкции деревянные
  • Рабочая проектная документация

Доставка

  • Упаковка в специальную воздуха проницаемую плёнку
  • Загрузка и доставка на объект покупателя в Московскую, Ленинградскую область.
  • Балочная система
  • Остекление
  • Кровля
  • Утепление
  • Организация СМР
  • Проектная документация
  • Доставка
  • 350 м2

    Общая площадь

  • 297 м2

    Теплый контур

  • 2

    этажа

  • 4

    спальни

  • 3

    санузла

Стоимость внешней отделки и отделки фасада рассчитываются отдельно

Фундамент.

Фундамент на выбор

Монолитная плита

Геодезические работы: разбивка осей, нивелировка, привязка строения на участке
Снятие почвенно-растительного слоя в пятне строительства глубиной 0,3 м
Укладка геотекстильной ткани на основание котлована
Песчаная подготовка под плитный фундамент толщиной 0,2 Устройство подбетонки М200 по песчаной подготовке
Устройство рулонной гидроизоляции в 1 слой
Устройство опалубки и арматурных каркасов фундамента
Приёмка сертифицированной бетонной смеси М300 с вибрированием на фундаменте
Армирование ж/б 12мм арматурой в два слоя

Железобетонные сваи

Геодезические работы: разбивка осей, нивелировка, привязка строения на участке
Монтаж свай специализированной роботизированной установкой
Размер сваи 200ммх200ммх3000м
Монтаж металлических оголовок
Покраска металлических оголовок

Портфолио.

Гордимся тем что уже сделали

Все портфолио
  • ART3-315

    Санкт-Петербург

    По запросу

    100 дней

  • ART3 340

    Новая Рига

    По запросу

    335 м2

    70 дней

  • ART5-300

    Приозерское шоссе

    По запросу

    290 м2

    90 дней

  • ART4-250 (с эркером)

    Разметелево

    По запросу

    246 м2

    60 дней

  • ART5-300

    Новорижское

    По запросу

  • ART5-300

    Новая Рига

    По запросу

    300 м2

Проекты.

Другие проекты Шале, Фахверк

  • Oasis

    Oasis

    Добавить в избранное
    • 1 этажный дом
    • 130 дней на монтаж
    • 385 м2 теплый контур
    • 427 м2

      Общая площадь

    • По запросу

      Цена сборки

    Перейти
    Подробнее
  • Model C 112

    Model C 112

    Добавить в избранное
    • 1 этажный дом
    • 60 дней на монтаж
    • 112 м2 теплый контур
    • 112 м2

      Общая площадь

    • По запросу

      Цена сборки

    Перейти
    Подробнее
  • KAIZEN

    KAIZEN

    Добавить в избранное
    • 1 этажный дом
    • 90 дней на монтаж
    • 205 м2 теплый контур
    • 222 м2

      Общая площадь

    • По запросу

      Цена сборки

    Перейти
    Подробнее
  • Model C-150

    Model C-150

    Добавить в избранное
    • 1 этажный дом
    • 60 дней на монтаж
    • 150 м2 теплый контур
    • 150 м2

      Общая площадь

    • По запросу

      Цена сборки

    Перейти
    Подробнее
Добавить в избранное

Видеоблог AndySpark

Следите за нами
как мы работаем

Перейти ко всем видео

Обзоры.

О нас говорят наши довольные клиенты

Все обзоры

Контакты.

Рады гостям Приезжайте
к нам в офис

  • Москва
  • Санкт - Петербург
Построить маршрут