ART3-315
Санкт-Петербург
По запросу
100 дней
Новый проект ALPENHAUS в стиле шале
Планировка, в которую влюбляешься с первого взгляда.
Грандиозный второй свет, панорамные окна, высокий потолок, уют у камина и настоящая архитектурная свобода.
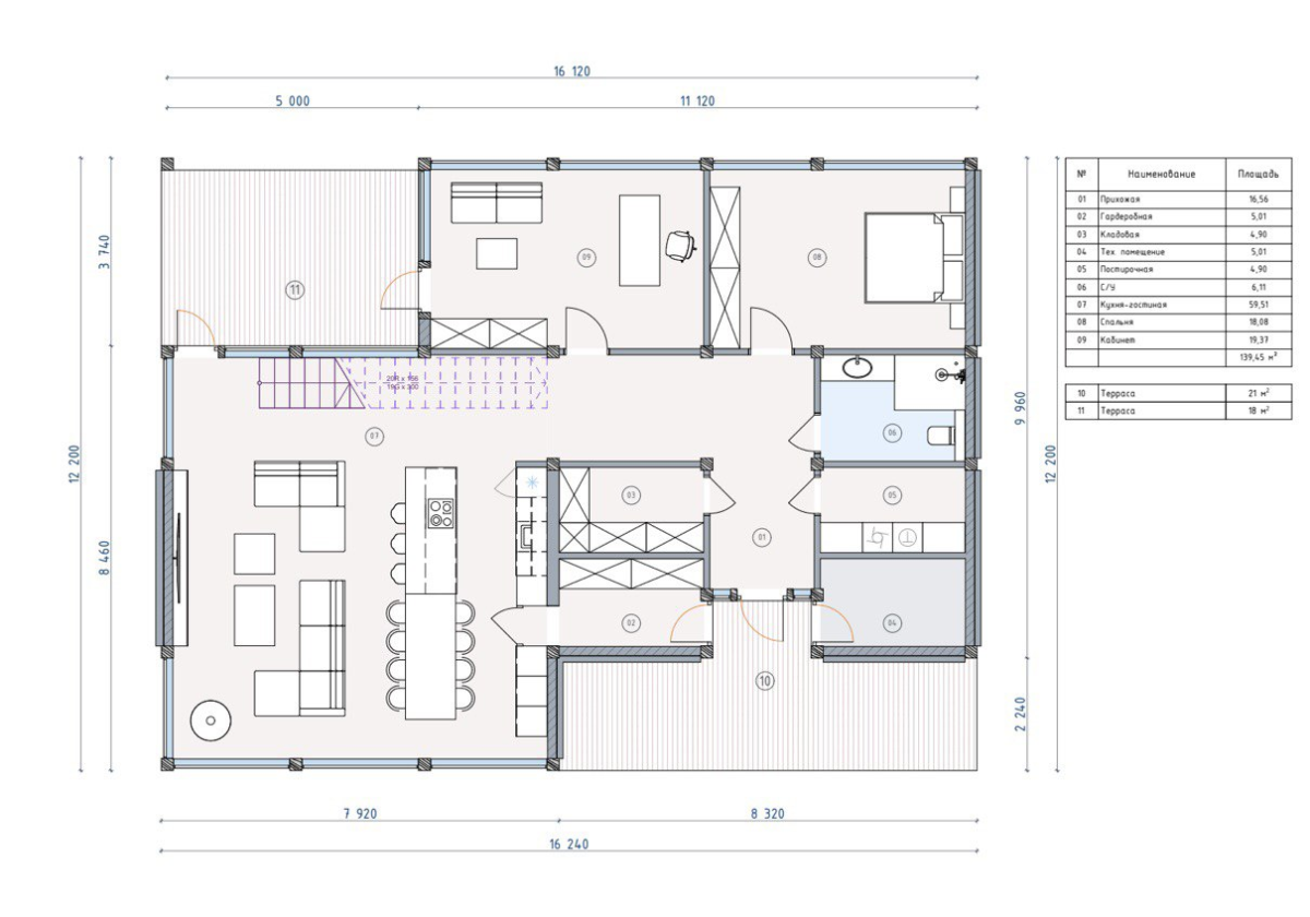
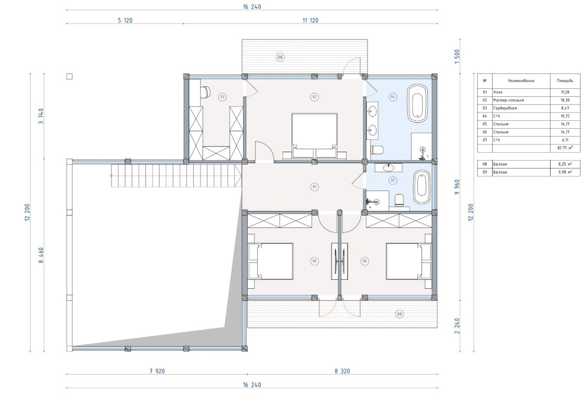
300 м2
Общая площадь
250 м2
Теплый контур
2
этажа
5
комнат
4
спальни
4
санузла
Архитектура.
Инновационные решения на базе вековых традиций
Отделка.
Инновационные решения на базе вековых традиций
Стоимость дома.
Стоимость дома по запросу на конкретную дату обращения
300 м2
Общая площадь
250 м2
Теплый контур
2
этажа
5
комнат
4
спальни
4
санузла
Стоимость внешней отделки и отделки фасада рассчитываются отдельно
Фундамент.
Геодезические работы: разбивка осей, нивелировка,
привязка строения на участке
Снятие почвенно-растительного слоя в пятне строительства
глубиной 0,3 м
Укладка геотекстильной ткани на основание
котлована
Песчаная подготовка под плитный фундамент толщиной 0,2
Устройство подбетонки М200 по песчаной подготовке
Устройство рулонной гидроизоляции в 1 слой
Устройство опалубки и арматурных каркасов
фундамента
Приёмка сертифицированной бетонной смеси М300 с
вибрированием на фундаменте
Армирование ж/б 12мм арматурой в два слоя
Геодезические работы: разбивка осей, нивелировка,
привязка строения на участке
Монтаж свай специализированной роботизированной
установкой
Размер сваи 200ммх200ммх3000м
Монтаж металлических оголовок
Покраска металлических оголовок
Портфолио.
Проекты.
Обзоры.
RIGA300 — это современная интерпретация классического фахверка с плоской кровлей и чистой архитектурной геометрией.
Мы сохранили основу — опорно-балочную систему и читаемую структуру дома — но переосмыслили форму. Плоская крыша придаёт объёму лаконичность и подчёркивает горизонталь, делая архитектуру более строгой и современной.
Главная особенность проекта — выверенное соотношение дерева и стекла.
Деревянный каркас создаёт ритм и конструктивную глубину.
Панорамное остекление наполняет дом светом и визуально облегчает объём.
В результате дом выглядит:
лёгким,
прозрачным,
современным,
архитектурно собранным.
Стекло отражает небо и окружающий ландшафт, а дерево добавляет тепла и тактильности. Этот баланс формирует ощущение уюта без тяжеловесности.
RIGA300 — это фахверк нового поколения.
Без избыточных деталей.
Без декоративной перегруженности.
Чистые линии, открытые пространства и конструктивная честность делают дом актуальным и визуально лёгким, сохраняя при этом надёжность и характер классической технологии.
«Золотой Город» — это проект площадью 1750 м², реализованный по технологии опорно-балочной системы из клеёного бруса.
Дом, который впечатляет не только размерами, но и инженерной глубиной.
1750 м² — это уже не просто загородный дом.
Это резиденция.
Высокие пролёты, большие открытые пространства, второй свет, панорамные фасады — всё работает на ощущение свободы и объёма. В таком доме пространство не делится на комнаты — оно течёт.
В основе проекта — мощная конструкция из клеёного бруса.
Эта технология позволяет:
перекрывать большие пролёты без лишних опор,
создавать открытые залы с чистой геометрией,
обеспечить стабильность и долговечность конструкции,
сохранить естественную красоту древесины в интерьере.
Клеёный брус работает не только как конструктивный элемент, но и как часть архитектурного образа. Балки формируют ритм, глубину и характер пространства.
«Золотой Город» — это проект о масштабе мышления.
О доме, который не ограничен стандартами.
Здесь инженерия и архитектура объединены в единую систему: несущие элементы становятся эстетикой, объём — частью философии, а конструкция — главным акцентом.
Это не просто большой дом.
Это архитектурное заявление.
Контакты.